ΑΕΚ:Ανακοίνωση για την κατασκευή Κολυμβητικού – Αθλητικού Κέντρου

Στα 95α γενέθλιά της, η ΑΕΚ ανακοινώνει την κατασκευή κολυμβητικού και αθλητικού κέντρου στην περιοχή της Βάρης, του Δήμου Βάρης-Βούλας-Βουλιαγμένης, παραπλέυρως της Λ. Βάρης – Κορωπίου, απέναντι από την Στρατιωτική Σχολή Ευέλπιδων. Η επιλογή της περιοχής έγινε βάσει κριτηρίων διαθεσιμότητας ιδιωτικών χώρων, πρόσβασης, εξοικείωσης των κατοίκων με τον υγρό στίβο, ζήτησης υπηρεσιών κολυμβητικού περιεχομένου και τέλος του αριθμού των φίλων της ΑΕΚ στην περιοχή. Θυμίζουμε ότι ειδικά η περιοχή της Βούλας και της Βάρης κατοικήθηκε από πολλούς Έλληνες της Πόλης και της Μικράς Ασίας.
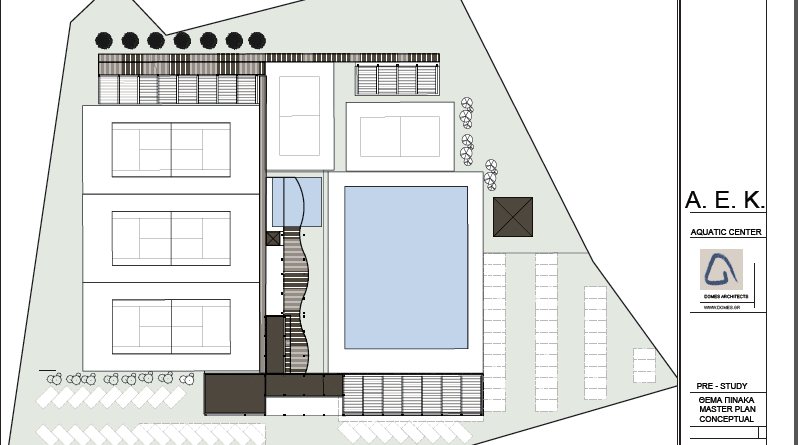
Αναλυτικότερα, το κολυμβητικό κέντρο θα αποτελείται από:
1) Ένα κολυμβητήριο διαστάσεων 25μ Χ 33μ, με 600 θέσεις θεατών κατασκευασμένο με όλες τις απαραίτητες προδιαγραφές για την διεξαγωγή εθνικών και διεθνών αγώνων όλων των αθλημάτων του υγρού στίβου
2) Μια πισίνα εκμάθησης παιδιών και ψυχαγωγίας ενηλίκων
3) Ένα γυμναστήριο με όργανα γυμναστικής και χώρο ομαδικών προγραμμάτων pilates, spinning κ.α., φυσιοθεραπείας και αποκατάστασης
4) Χώρος εκδηλώσεων και συνεστιάσεων για κοινωνικές εκδηλώσεις και καθημερινής αναψυχής με τη λειτουργία καφέ-εστιατορίου
5) Μουσειακός χώρος
6) Τα γραφεία των τμημάτων υδατοσφαίρισης, κολύμβησης, τεχνικής και συγχρονισμένης κολύμβησης της ΑΕΚ
7) Μικρό πωλητήριο προϊόντων ένδυσης, εξοπλισμού και αξεσουάρ κολύμβησης και υδατοσφαίρισης
8) Χώρους στάθμευσης σύμφωνα με την κείμενη νομοθεσία και τις ανάγκες χρήσης του κέντρου.
Παράλληλα, θα κατασκευαστούν αθλητικές εγκαταστάσεις ανάπτυξης και αγώνων για τέννις, padel βόλλευ, beach βόλλευ σε συνεργασία με καταξιωμένες προσωπικότητες από τους χώρους των αθλημάτων αυτών.
Στις εγκαταστάσεις του νέου κολυμβητικού και αθλητικού κέντρου της ΑΕΚ θα φιλοξενηθούν:
Όλα τα αγωνιστικά τμήματα υδατοσφαίρισης και κολύμβησης ανδρών, γυναικών της ΑΕΚ.
Όλα τα τμήματα των ακαδημιών και των ομάδων υποδομής υδατοσφαίρισης και κολύμβησης της ΑΕΚ.
Δημότες του δήμου Βάρης-Βούλας-Βουλιαγμένης σε προκαθορισμένες ώρες κοινού.
Τμήματα ομάδων της περιοχής τα οποία θα εκδηλώσουν ενδιαφέρον φιλοξενίας.
Αθλητές όλων των επαγγελματικών και ερασιτεχνικών τμημάτων της ΑΕΚ για σκοπούς αποκατάστασης από τραυματισμούς ή εκγύμνασης.
Ειδικά καλοκαιρινά Camp εκμάθησης και ψυχαγωγίας.
Εκδηλώσεις σε σχέση με τον υγρό στίβο.
Εθνικές ομάδες της ΚΟΕ (Κολυμβητική Ομοσπονδία Ελλάδος) ανάλογα με τις εκάστοτε ανάγκες της ομοσπονδίας και της διαθεσιμότητας του κέντρου.
Εμπνευστής της ιδέας και επικεφαλής του συντονισμού του έργου είναι ο έφορος του νεοσύστατου τμήματος υδατοσφαίρισης και κολύμβησης της ΑΕΚ, κ. Πάνος Μιχαλόπουλος, με αρωγούς τον αρχηγό των αγωνιστικών τμημάτων, κ. Γιώργο Κιρμιζόγλου, τον επικεφαλής των ακαδημιών, κ. Πέτρο Δεβερίκο, και τον team Manager, κ. Βασίλη Σιαμάνη.
Το όλο έργο θα πραγματοποιηθεί σε ιδιωτικό χώρο συνολικής έκτασης 12 στρεμμάτων, ο οποίος θα εκμισθωθεί μέσω μακροχρόνιας μίσθωσης, ενώ η συνολική χρηματοδότηση θα καλυφθεί πλήρως από ιδιωτικά κεφάλαια. Η εταιρεία DOMES (http://design.domes.gr/wp/ ) έχει αναλάβει τον αρχιτεκτονικό σχεδιασμό και την παρακολούθηση του έργου.
Το νέο κολυμβητικό και αθλητικό κέντρο της ΑΕΚ θα φέρει την επωνυμία “CISTERNA POLIS” ή “ΚΙΝΣΤΕΡΝΑ ΠΟΛΗ”.
Η επωνυμία έρχεται από την Βασιλική Κινστέρνα, γνωστή πλέον ως Yerebatan Saray (υπόγειο παλάτι). Είναι η μεγαλύτερη υπόγεια δεξαμενή νερού που κατασκευάστηκε στην Κωνσταντινούπολη στα χρόνια του Βυζαντίου, βρίσκεται στον πρώτο λόφο της πόλης, περίπου 150 μέτρα νοτιοδυτικά της Αγίας Σοφίας. Ονομάστηκε έτσι λόγω της θέσης της, κάτω από τη Βασιλική Στοά η οποία χτίστηκε από τον Μεγάλο Κωνσταντίνο και διαμορφώθηκε ως έχει σήμερα, όταν ξαναχτίστηκε γύρω στο 542 μ. Χ. από τον αυτοκράτορα Ιουστινιανό Α’, μετά την περίοδο της στάσης του Νίκα, για την ύδρευση της Κωνσταντινούπολης σε ολόκληρη τη βυζαντινή περίοδο και για να προμηθεύει νερό στο παρακείμενο «Μέγα Παλάτιον», όπου είχε την έδρα του ο βυζαντινός αυτοκράτορας.
Το έργο βρίσκεται στην οριστικοποίηση των σχεδίων και της υποβολής των αιτημάτων λήψης όλων των σχετικών αδειών και ο χρόνος κατασκευής του εκτιμάται σε 9-12 μήνες.
Αναλυτικά σχέδια θα παρουσιαστούν στη διάρκεια της Γενικής Συνέλευσης της ερασιτεχνικής ΑΕΚ στις 20 Απριλίου 2019 ενώ ένα προσχέδιο της βασικής ιδέας (conceptual), χωρίς λεπτομέρεια, παρουσιάζει τον άξονα “Ιστορία – Κίνηση Νερού – Δύναμη – Διαφάνεια – Κύμα – Σύγχρονο – Δυναμικό DNA ΑΕΚ” στον οποίο στηρίζεται η σχεδίαση και η κατασκευή του CISTERNA POLIS.
Ο επικεφαλής του έργου και έφορος των τμημάτων κολύμβησης και υδατοσφαίρισης της ΑΕΚ δήλωσε: “Σήμερα ανήμερα των 95 γενεθλίων της ΑΕΚ γιορτάζουμε εκτός από την ιστορία μας και την ιστορική στιγμή κατά την οποία η ΑΕΚ ξεκινά τη δημιουργία ενός σύγχρονου κολυμβητικού κέντρου. Σαν σήμερα πριν από 2 χρόνια ανακοινώσαμε τη δημιουργία της ανδρικής ομάδας water polo της ΑΕΚ, η οποία κατάφερε στην πρώτη της χρονιά να κατακτήσει το πρωτάθλημα της Γ’ Εθνικής και να βαδίζει προς την καθιέρωση της στην Α1 Εθνική κατηγορία σε 2 χρόνια από σήμερα.
Η CISTERNA POLIS όμως δεν κατασκευάζεται μόνο για να πρωταγωνιστούν τα αγωνιστικά τμήματα κολύμβησης και υδατοσφαίρισης της ΑΕΚ, γεγονός αυτονόητο αλλά για να αναπτυχθούν ακαδημίες και υποδομές οι οποίες θα φέρουν πολλά παιδιά κοντά μας μαζί με τις οικογένειες τους. Οι ακαδημίες για εμάς είναι το Α και το Ω. Μας δίνουν δύναμη να χτίζουμε σε υγιείς βάσεις όπως έχουν κάνει πολλά χρόνια τώρα παραδοσιακές δυνάμεις του χώρου μας όπως η Γλυφάδα και η Βουλιαγμένη. Πάνω από όλα όμως θέλουμε να φέρουμε κοντά στον υγρό στίβο και στην θαυμαστή ιστορία του μείζονος Ελληνισμού, την οικογένεια η οποία θέλει να μάθει το παιδί του να κολυμπάει με ασφάλεια, να αθλείται και να ψυχαγωγούνται μαζί σ’ ένα χώρο φυσικού κάλους με σύγχρονες εγκαταστάσεις. Ευελπιστούμε επίσης ότι η CISTERNA POLIS θα αποτελέσει χώρο επιλογής όπου άνθρωποι θα χαρούν έναν γάμο, μια βάφτιση, τα γενέθλια, ένα πάρτυ ή μια επαγγελματική τους επιτυχία. Η προσπάθεια είναι μεγάλη και δύσκολη αλλά με την αγάπη και την συμπαράσταση των φίλων της ΑΕΚ και των κατοίκων της περιοχής θα τα καταφέρουμε”.
Πέραν του ανωτέρω πρότζεκτ, η Διοίκηση του Σωματείου σε συνεργασία με τους Υπεύθυνους των Τμημάτων Κολύμβησης, προχωρά την ανάπτυξη των τμημάτων και σε εγκαταστάσεις που βρίσκονται στις παραδοσιακές περιοχές της ομάδας μας (Νέα Φιλαδέλφεια και Βορειοδυτικά Προάστια).













